|
||
全部產品分類
|
||



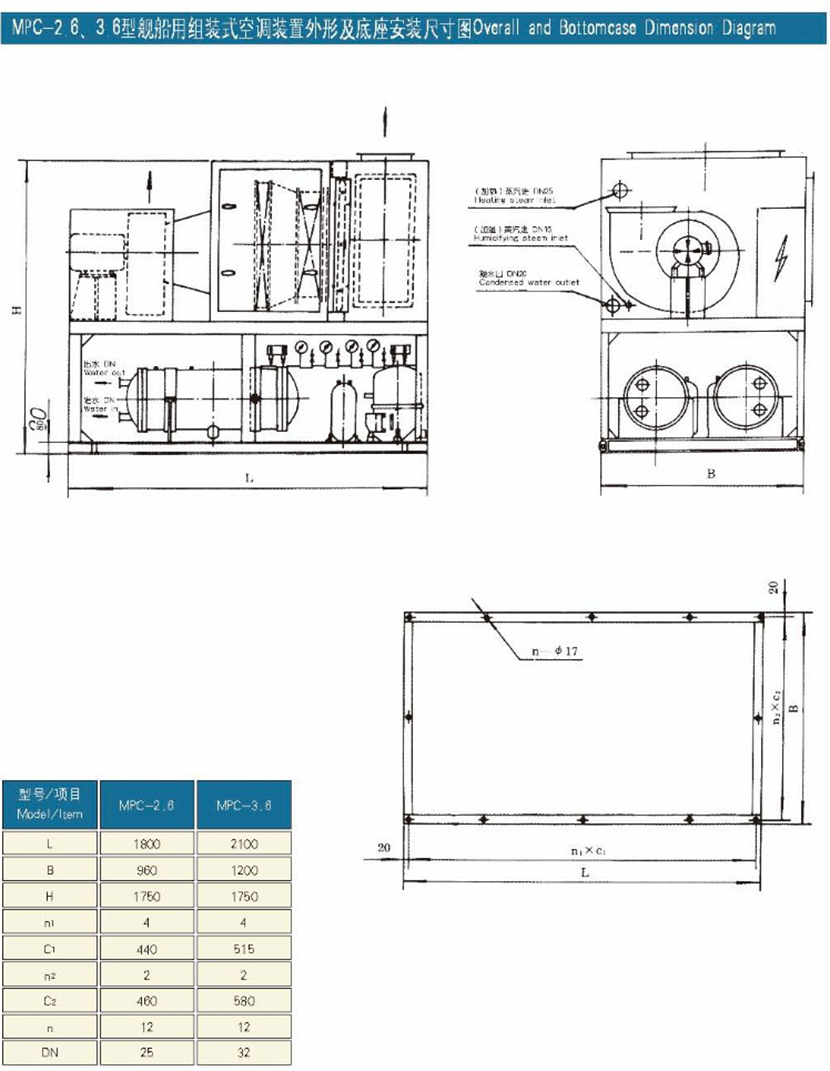
| 組裝式空調裝置 | |||
| 類型: | 組裝式 | 制冷量: | 93kw |
| 制熱量: | 107kw | 名義風量: | 8200m3/h |
| 制冷介質: | R22 (R404A R134a R407C) | 制熱介質: | 0.3~0.4MPa飽和蒸汽(或電加熱) |
| 主電路電源: | AC380V 3Φ 50Hz | 控制電路電源: | AC220V 1Φ 50Hz |
| 安全保護裝置: | 高壓、低壓(油壓)水壓、過載保護、安全閥(全封閉及飛濺式潤滑壓縮機 無油壓保護) | 壓縮機型式: | 半封閉活塞式或螺桿式 |
| 壓縮機能量調節: | 0%、50%、100%(0%、66%、100%) | 壓縮機電機功率: | 26kw |
| 冷凝器型式: | 臥式殼管式 | 冷凝器進水溫度: | ≤32℃ |
| 冷凝器水流量: | 24m3/h | ||




| -供應商聯系方式- | |||||
|
|
公司名稱: | 上海柏越船舶設備有限公司 |
|
聯系人姓名: | |
| 公司地址: | 上海市奉賢區南奉公路4428號 | 聯系人電話: | 021-57569573 / 021-57569573 / 021- 57569572 | ||
| 聯系人郵箱: | shby-marine@263.com | ||||